Posuvný systém COR Vision Plus, s prerušeným tepelným mostom
sklo max. 54mm, Uw = od 1,5 (W/m2K), RW = max. 42dB
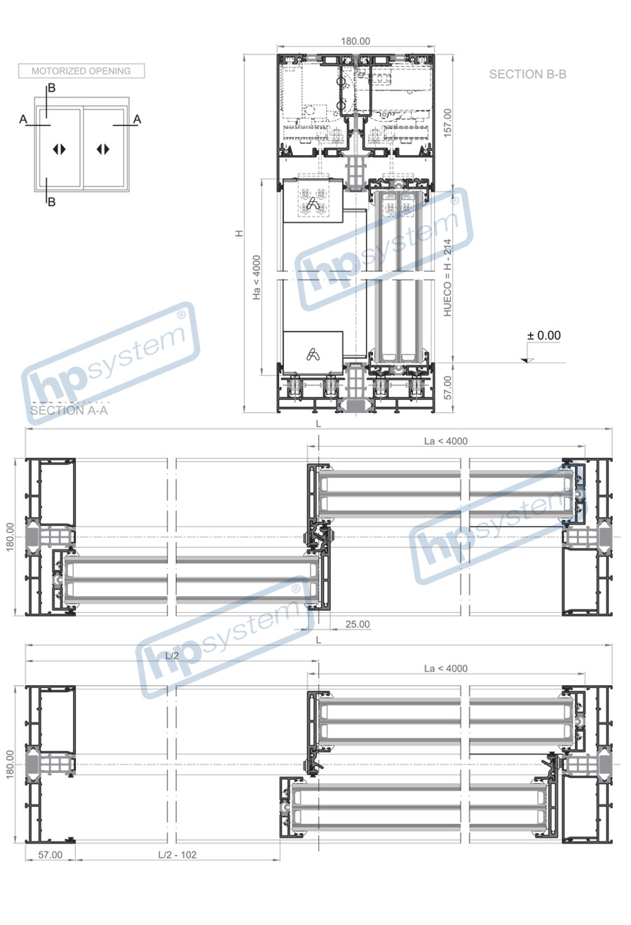
Minimalistický posuvný systém vhodný najmä pre veľké rozmery, ktorý umožňuje maximálne presvetlenie miestnosti pri minimálnej pohľadovej šírke hliníkových profilov. Zasklená plocha predstavuje 94% celkového povrchu.
Výnimočná kapacita zasklenia dovoľuje použiť kompozície skiel až do 54 mm a garantuje najlepšie akustické a tepelné vlastnosti pre systém týchto charakteristík.
Je k dispozícii v konfiguráciách krídlo a fix, 2 a 4 krídla a maximálny rozmer krídla je 4.000 mm/ krídlo šírka, alebo výška.
Pohľadová šírka profilov v stredových spojoch je len 25 mm a spodné, vrchné aj bočné rámy je možné kompletne zapustiť do ostenia a podlahy.
Zahŕňa aj možnosť motorizovaného otvárania do hmotnosti 700 kg, pri manuálnom otváraní je povolená hmotnosť do 400 kg. Rovnako umožňuje aj použitie systému viacbodového uzáveru cez tiahlo s, alebo bez kľúča.
Ložiská sú uložené v ráme a krídla majú vystuženú nerezovú koľajnicu, čo zabezpečuje plynulé a ľahké posúvanie. Jedná sa o systém s tradičným montážnym postupom s rámom spojeným na 45°a krídlom na tupo, kde je možné krídlo odmontovať v prípade rozbitia skla, poškodenia hliníkového profilu, atď.







