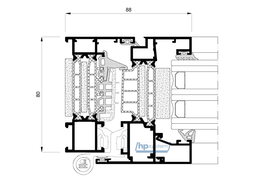
Hliníkové okno s prerušeným tepelným mostom COR 80 industrial,
sklo max. 65mm, RW = max. 46 dB, Uw = od 0,8 (W/m2K)
Nový koncept pántového systému s Európskym kanálom, schopný dosiahnuť maximálnu úroveň vodotesnosti, energetickej úspornosti a zvukovej izolácie s kratšou dobou výroby a montáže. S konštrukčnou hĺbkou 80 mm, spĺňa požiadavky tých najprísnejších klimatických podmienok, poskytujúc vynikajúcu úroveň energetickej účinnosti vzhľadom k minimálnej hodnote tepelnej priepustnosti okna (UH), ktorá môže dosiahnuť hodnotu od 0.8 W/m2K. Tieto minimálne hodnoty sa dosiahnu vďaka dokonalému dizajnu časti prerušenia tepelného mosta 45 mm polyamidom tvaru „Ω“ a spojením profilov z tkaného polyolefinu a penovým tesnením skla, ako na ráme tak aj na krídle.
Vysoká kapacita zasklenia až 65 mm, dáva priestor použitiu energeticky úsporných okien a kompozícií zasklievania so sklami veľkej hrúbky a dvojitej komory, ktoré umožňujú vynikajúce tepelné a akustické vlastnosti systému (ochrana proti hluku až 46 dB), čo sa odzrkadľuje v maximálnej energetickej úspornosti a vnútornom komforte.
Výsledky realizovaných skúšok systému predstavujú okno najlepších vlastností čo sa týka prievzdušnosti, vodotesnosti a odolnosti proti vetru, čím sa zabezpečí maximálna ochrana pred najtvrdšími klimatickými podmienkami.
Jednoduchosť montáže dovoľuje zníženie potreby pracovných síl a možnosť väčšieho spriemyselnenia výroby a v konečnom dôsledku úspory času a nákladov


